Residents of River Park Tower benefit from the amazing on site facilities including the gym, studio and juice bar, along with media/meeting rooms, a lounge/work area and communal garden.
Nine Elms Lane is a thriving neighbourhood, known for its excellent transport links and proximity to a variety of amenities. Residents can enjoy easy access to shops, restaurants, and parks, making it a desirable location for both families and professionals alike.
Council Tax Band: Wandsworth - F
Minimum contract: 12 months
Change of contract fee: £50 including VAT
Lift access
Holding Deposit - £1800 (1 weeks rent, subject to agreed offer)
Electricity supply – Mains | Cold Water supply – Mains | Sewerage – Mains | Hot water, heating & comfort cooling –Communal | Internet: FTTP
To check broadband and mobile phone coverage please visit Ofcom.
Deposit Amount: £10800
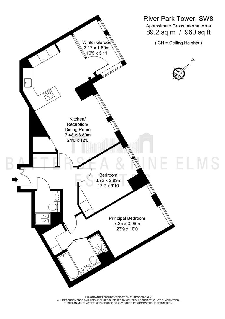
- Two double bedrooms
- Two bathrooms (one ensuite)
- 24 hour concierge
- Business lounge
- Multimedia and meeting rooms
- Sky terrace and communal garden


